Notre vision de l’architecture d’intérieur
Chez Sanagi, nous croyons que la rénovation et l’architecture d’intérieur vont bien au-delà de la décoration. C’est l’art de concevoir des espaces qui reflètent un mode de vie, tout en respectant des contraintes techniques et réglementaires.
Nous concevons des intérieurs fonctionnels, confortables et esthétiques, en jouant avec la lumière, les textures et les volumes. Notre mission : créer un environnement qui vous ressemble, durable et inspirant, que ce soit pour une rénovation, une extension ou une construction neuve.
«Du plan naît l’espace, de la lumière naît l’harmonie»
Les étapes d’un projet d’architecture d’intérieur
1er rendez-vous
Récupération des plans existants
& Relevés
Etat des lieux
Réalisation d’une maquette
A partir des plans & des relevés
2ème rendez-vous : Création du cahier des charges
Budget / Nb & type de pièces /
Fonction du projet / Goût du client
Avant-projet sommaire
Réalisation de plan d’aménagement
3 versions
Avant-projet définitif
Mise à jour des plans
Plan d’aménagement / plans de coupe / plans de façade / plan de masse
Option
Plans techniques
Plan Courant-fort & courant faible / Plan de plomberie / Plan Chauffage, Ventilation, Climatisation
Option
Décoration
Cahier des charges / Planche
d’ambiance / Rendu photoréaliste / Visite 3D
Livraison
Remise du DCE
Document de consultation d’entreprise
Architecte, architecte d’intérieur, décorateur… et Sanagi
Architecte
Architecte d’intérieur
Dessinateur & Architecte d’intérieur
Décorateur
Dépôt de permis de construire
- Accompagnement jusqu’au dépôt (selon surface)
Réorganisation des volumes
(cloisons, espaces)
- Plan d’aménagement complet
Plans techniques
(électricité, plomberie, CVC)
- Détaillés & pédagogiques
Optimisation lumière
& circulation
- Intégré à chaque projet
Limité
Aménagement intérieur
& design global
- Design + faisabilité technique
- Ambiance
Budget & optimisation économique
Souvent élevé
Variable
Solution complète,
prix maîtrisé
Accessible
Vos avis
Parole de clients
Publié sur Baptiste MiocheTrustindex vérifie que la source originale de l'avis est Google. Un grand merci à Rémi Moulin pour nous avoir sortis d’une belle galère avec l’urbanisme de Saint-Raphaël, grâce à la qualité de ses plans et à la gestion efficace de la DP.Publié sur Amy mincraftTrustindex vérifie que la source originale de l'avis est Google. Personne très professionnel, disponible et de bon conseil. Je recommande +++Publié sur Luc De MariaTrustindex vérifie que la source originale de l'avis est Google. Accompagnement dans le cadre du projet d'aménagement extérieur de notre maison (conception, démarches administratives...) Ecoute, réactivité, professionnalisme sont au rendez-vous Je recommande fortementPublié sur BLUE WAVE IMMOBILIERTrustindex vérifie que la source originale de l'avis est Google. Nous avons eu l’occasion de confier plusieurs projets à Rémi Moulin (SANAGI) et chacun d’eux a été une véritable réussite. Son professionnalisme, ses compétences techniques et sa réactivité font clairement la différence à chaque étape des dossiers. C’est un partenaire fiable, impliqué et toujours force de proposition. S’il fait aujourd’hui partie du réseau premium de la Maison de l’Immobilier et du Patrimoine de l’Estérel, ce n’est pas un hasard : les professionnels qui y sont intégrés sont sélectionnés pour la qualité de leur travail, et Rémi en est un excellent exemple. Je recommande sans hésitation.Publié sur Ist GyTrustindex vérifie que la source originale de l'avis est Google. Merci M. Rémi Moulin et son équipe. Ils nous ont aidés à réaliser notre projet qui n'était pas gagné d'avance pour le dépôt de permis de construire et d'autres. Ils nous ont accompagnés jusqu'au bureau de service urbanisme pour présenter le projet et sa faisabilité, et grâce à leur disponibilité tout s'est bien passé. Après 2 ans de travail, on est chez nous :)Publié sur Agathe A.Trustindex vérifie que la source originale de l'avis est Google. J’ai confié mon projet à Remi. Il est très à l’écoute de nos besoins et contraintes. Fais des propositions justes et pleines de détails et d’améliorations. Le travail est soigné, dans les temps. Très agréable de travailler avec des professionnels passionnés !Publié sur ghislaine philyTrustindex vérifie que la source originale de l'avis est Google. Merci à Rémi pour ses conseils et sa disponibilité, il a réalisé les plans et le suivi du PC pour la surélévation de notre maison Merci pour sa gentillesse Ghislaine et Jean Pierre PhilyPublié sur flavien zuccaTrustindex vérifie que la source originale de l'avis est Google. Un véritable pro ! Remi a su comprendre mes attentes dès le premier rendez-vous. Il est à l'écoute, créatif et très rigoureux dans son travail. Les plans étaient clairs, bien pensés, et le rendu final dépasse mes attentes. Je recommande à 100 %, les yeux fermés ! je recommande !Publié sur jacques salibaTrustindex vérifie que la source originale de l'avis est Google. Force de proposition. Respect des délais et réalisation parfaite. Le tout avec de la convivialité. A recommander. Congratulations. Mr SALIBA
Détails de nos expertises en architecture d’intérieur
Relevé : la base d’un projet réussi
Chaque projet commence par une étape incontournable : le relevé. Sans mesures précises, impossible d’imaginer un aménagement juste et fiable. Chez Sanagi, nous utilisons aussi bien des outils traditionnels (mètre, télémètre) que des technologies avancées comme le scanner 3D Leica BLK360 ou le Lidar de nos iPhones. Ces relevés détaillés permettent d’obtenir une vision exacte de votre espace et d’éviter toute mauvaise surprise lors des travaux.
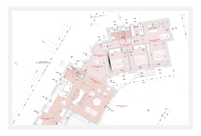
Plans d’aménagement : dessiner votre futur intérieur
Un plan d’aménagement intérieur est bien plus qu’un simple dessin. Il vous aide à visualiser la disposition des pièces, des cloisons, du mobilier et des circulations. Grâce à ArchiCad, nous travaillons à la fois en 2D et en 3D pour que vous puissiez vous projeter dans votre futur chez-vous. Cette étape permet aussi d’optimiser la lumière, de fluidifier la circulation et de transformer chaque mètre carré en un espace utile et agréable.
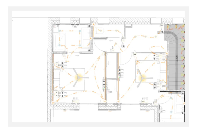
Plans techniques : CFO, CFA, plomberie & CVC
La réussite d’une rénovation passe par des bases solides. Nous réalisons des plans électriques (courant fort et courant faible), conformes à la norme NF C 15-100, pour garantir confort et sécurité.
Nous concevons aussi des plans de plomberie, pensés pour durer et faciliter l’entretien, ainsi que des plans CVC (chauffage, ventilation, climatisation) pour un confort thermique idéal toute l’année. Ces documents techniques facilitent le travail des artisans et assurent une exécution sans erreurs.
Rendus 3D & visites virtuelles : se projeter avant les travaux
Grâce à Twinmotion, vos volumes, matières et lumières prennent forme en temps réel. Les rendus 3D et visites virtuelles vous permettent de parcourir votre futur intérieur, d’ajuster couleurs, mobiliers et ambiances, puis de valider des choix sûrs avant le premier coup de marteau. Vous comparez plusieurs options, anticipez les circulations, optimisez la lumière naturelle et maîtrisez le budget en évitant les erreurs coûteuses. Résultat : une vision claire, partagée par toutes les parties prenantes, et un chantier plus serein, fidèle à vos attentes.
FAQ : Architecture d’intérieur
Quelle est la différence entre un architecte et un architecte d’intérieur ?
L’architecte conçoit le bâtiment dans son ensemble et a l’obligation légale de déposer les permis de construire au-delà de 150 m². L’architecte d’intérieur, lui, se concentre sur les espaces intérieurs : volumes, lumière, aménagements et ambiance. Son rôle est plus technique et complet qu’un simple décorateur.
Pourquoi choisir Sanagi plutôt qu’un décorateur ?
Un décorateur agit surtout sur l’ambiance (couleurs, mobilier, matières). Chez Sanagi, nous allons plus loin : relevés précis, plans techniques (électricité, plomberie, CVC), rendus 3D et visites virtuelles. Notre mission est de créer un intérieur beau et fonctionnel, conforme aux normes et pensé pour durer.
Pouvez-vous m’accompagner dans une rénovation de villa à Fréjus ou Saint-Raphaël ?
Oui. Nous intervenons sur tout projet de rénovation intérieure, extension ou aménagement dans le Var et plus largement en région PACA. Notre proximité locale est un atout : nous connaissons les réglementations et partenaires de la région.
Faut-il obligatoirement un architecte pour mon projet ?
Pas forcément !
Tout dépend du type de travaux et de la surface totale de votre projet.
Chez Sanagi, nous vous aidons à y voir clair dès la première étape.
Notre rôle est de vous accompagner pour savoir si votre dossier peut être déposé sans architecte ou si un recours obligatoire s’applique.
Quand l’architecte n’est pas obligatoire
Vous pouvez déposer vous-même votre demande si :
Vous êtes un particulier et que la surface totale (construction existante + extension) ne dépasse pas 150 m² ;
Votre projet concerne une construction légère ou une extension de moins de 20 m² (ou 40 m² en zone urbaine couverte par un PLU) ;
Il s’agit d’un aménagement intérieur, d’une vitrine commerciale ou de travaux sans modification extérieure.
Quand l’architecte devient obligatoire
Le recours à un architecte est imposé lorsque :
Votre projet nécessite un permis de construire ;
La surface totale dépasse 150 m² après travaux ;
Vous êtes une société, un promoteur ou une collectivité (personne morale) ;
Vous réalisez une construction agricole dépassant 800 m² d’emprise au sol.
Le conseil Sanagi
Chaque projet est unique.
Avant toute démarche, nous vérifions avec vous les seuils réglementaires et vous aidons à choisir la bonne procédure (déclaration préalable ou permis de construire).
Notre objectif : vous faire gagner du temps et éviter les erreurs administratives.
Est-il possible de visualiser mon projet avant de lancer les travaux ?
Absolument. Nous proposons des rendus 3D photoréalistes et des visites virtuelles immersives en réalité virtuelle. Vous pouvez vous promener dans votre futur intérieur et valider vos choix sereinement.
Quels sont vos tarifs pour un projet d’architecture d’intérieur ?
Chaque projet est unique : rénovation d’appartement, extension de villa, aménagement d’espace professionnel… Nos tarifs dépendent de la complexité et de la surface du projet. Le plus simple est de nous contacter pour obtenir un devis personnalisé et gratuit.